Appartamento in Affitto a Torino
Via Vincenzo Gioberti
Crocetta
2
1
2 Codice 13988
€ 880
Descrizione
Torino Crocetta Via Gioberti angolo Via Pastrengo
Ultimo piano ristrutturato con balcone, doppi servizi e aria condizionata
Nel cuore della Crocetta, proponiamo in locazione con contratto 4 anni Appartamento completamente ristrutturato, situato all'ultimo piano, luminoso e silenzioso.
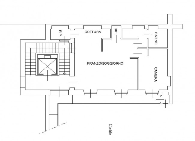
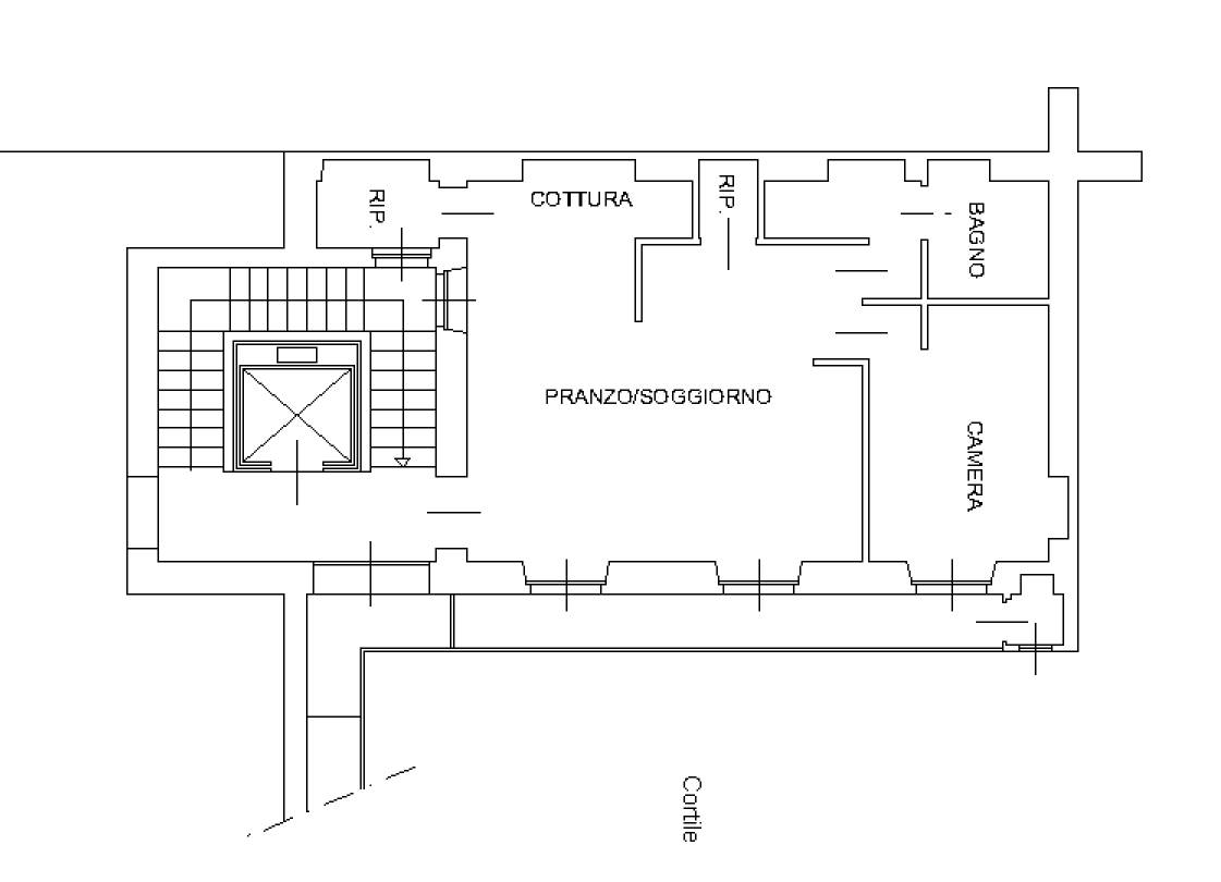
L'immobile si distingue per gli spazi ben distribuiti e per la qualità delle finiture ed è composto da:
- ampio soggiorno con zona pranzo e cucina a vista
- camera da letto
- doppi servizi
- ripostiglio attrezzato
Caratteristiche principali
- ristrutturazione completa (2012)
- riscaldamento autonomo
- aria condizionata canalizzata
- pavimentazione in parquet
- ultimo piano, molto luminoso
Spazi esterni e accessori
- balcone unico con accesso sia dal soggiorno che dalla camera
- zona esterna attrezzata con lavatrice e caldaia
- cantina
ZONA IN CUI E’ UBICATO
SCHEDA RIEPILOGATIVA
Codice 13988
Contratto Affitto
Tipologia Appartamento
Regione Piemonte
Provincia Torino
Comune Torino
Zona Crocetta
Prezzo € 880
Totale mq 78 mq
Camere 1
Bagni 2
Locali 2
Stato conservazione Buono
Piano Ultimo
Piani totali 4
Riscaldamento Autonomo
Ascensore Si
Infissi legno doppi vetri
Anno di costruzione 1885
Stato attuale Dato in locazione
Spese condominio € 70 (mensile)
Disponibile Si
Balconi Presente
Cucina A Vista
Posizione Centrale
Classe energetica E
EP glnr 119.70 kwh/m²
CONTATTACI!
Vuoi ricevere maggiori informazioni su questo immobile?
Contattaci subito compilando il modulo sottostante!



