Villa in Vendita a Rivoli
MP
7
3
3
2
Villa indipendente con giardino privato e ampio box
Villa indipendente libera su quattro lati, circondata da giardino privato di circa 1000 mq, disposta su due livelli fuori terra.
Al piano terra l'ingresso avviene tramite un elegante atrio che conduce alla zona giorno composta da ampio soggiorno luminoso e affacciato sull'esterno, sala da pranzo collegata, cucina abitabile, disimpegno, bagno e locale lavanderia.
Al piano primo la scala interna conduce alla zona notte composta da tre camere da letto, guardaroba, studio/spazio polifunzionale, due bagni e balconi su più lati.
Al piano interrato vi è una spaziosa cantina ed un locale utilizzabile come tavernetta.
L'immobile è dotato di serramenti in legno-alluminio, tapparelle elettriche, zanzariere, riscaldamento a pavimento, pannelli solari e impianto fotovoltaico.
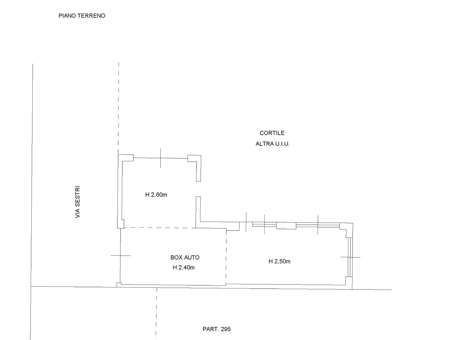
Completa la proprietà un box auto di 45 mq con wallbox, perfetto per più autovetture e uso deposito.
Aggiornamenti catastali eventualmente in corso. Pertanto, tutti i dati sopra riportati non costituiscono elementi né presupposti contrattuali.
Vuoi ricevere maggiori informazioni su questo immobile?
Contattaci subito compilando il modulo sottostante!


