Ufficio in Vendita a Torino
19
5 Ampio Ufficio in prestigiosa palazzina di rappresentanza
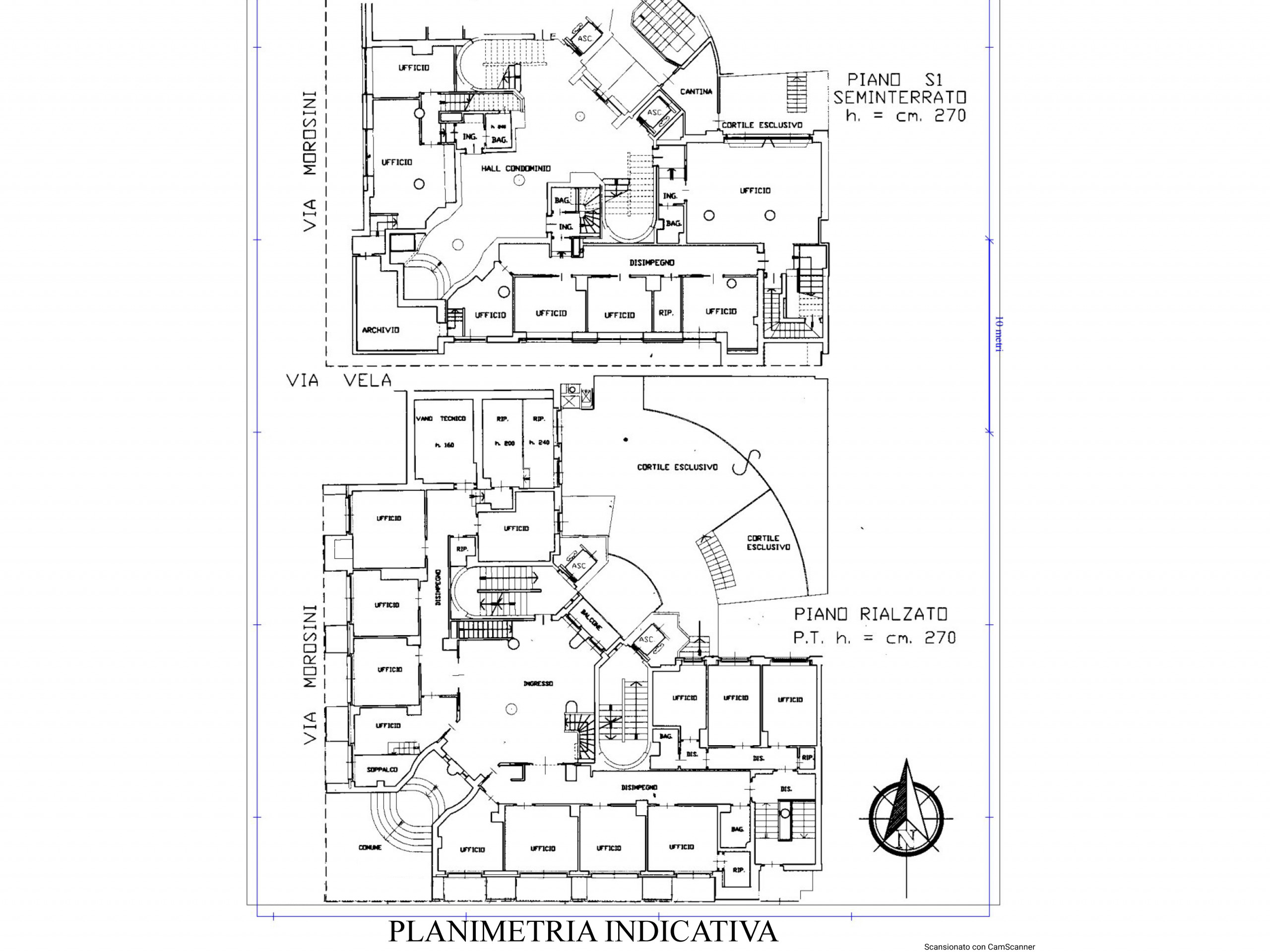
Via Vela, proponiamo in Vendita un Ufficio in palazzina di grande rappresentanza con doppio ascensore, unica nel suo genere per fascino architettonico e posizione strategica.
La proprietà è disposta su due livelli ed è composta al piano terra da ampio ingresso, sette locali spaziosi e luminosi, tre bagni e un locale archivio. Ampio giardino collegato.
Al piano rialzato troviamo dodici uffici, due bagni, cinque ripostigli, e un locale tecnico. Possibilità di acquisto due box auto collegati all'Ufficio ad € 100.000.
Distribuzione degli spazi funzionale, perfetta per uffici direzionali, showroom o attività istituzionali.
Ideale per sedi direzionali di aziende e multinazionali, fondazioni, istituzioni o associazioni che necessitano di ampi ambienti.
Possibilità di cambio destinazione d'uso a residenziale.
Vuoi ricevere maggiori informazioni su questo immobile?
Contattaci subito compilando il modulo sottostante!



