Stabile - Palazzo in Vendita a Milano
20
20
7
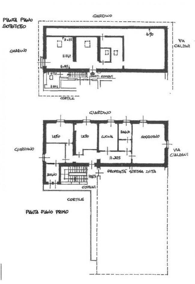
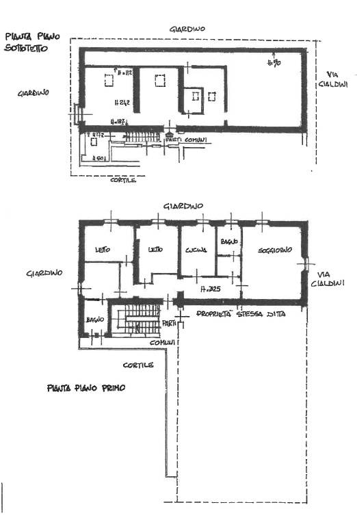
Palazzina cielo-terra in zona Affori disposta su 4 piani di cui 3FT: 2 piani abitativi e il piano solai. Circa 940mq commerciali. Composta da 4 appartamenti, un grande negozio/ex-ristorante, vano cantine, piano solai, cortile interno e giardino di proprietà. Condizioni complessive buone. Potenzialità di sviluppo immobiliare anche con recupero dei sottotetti.
Si trova a brevissima distanza dalla fermata Affori Centro della linea Gialla della Metropolitana, che unitamente ai mezzi pubblici di superficie garantisce un comodo e facile collegamento con il centro della città. Zona in forte espansione residenziale, con negozi di vicinato, supermercati e un adeguato livello di servizi.
Gli immobili oggetto della presente stima si trovano all'interno di un complesso edilizio realizzato attorno al 1925. L'edificio principale è costituito da due corpi di fabbrica uniti a formare una L; internamente è presente un cortile di forma quadrata che prosegue poi con un'area a giardino. L'edificio principale affaccia per un lato sulla via Cialdini, dove è presente anche l'accesso di tipo pedonale e carrabile, con l'altro lato guarda su un giardino di proprietà mentre i lati opposti, interni, affacciano sul cortile interno.
L'immobile si eleva per tre piani fuori terra (piani terra, primo e solai) e per un piano interrato in cui sono presenti le cantine. Non è presente l'ascensore, l'impianto di riscaldamento è attualmente di tipo centralizzato.
Gli immobili oggetto di Vendita:
Locale commerciabile trasformabile in residenziale, posto al Piano Terra di 196mq (altezza mt. 4,00 circa) con cantina di 114mq, e giardino di circa 320mq
Appartamento Piano Terra di 99mq con cantina di pertinenza di 55,80mq e soppalco di 17,50mq
Appartamento Piano Primo di 138mq
Appartamento Piano Primo di 85,20mq
Appartamento Piano Primo di 82,90mq
Solaio di 130mq recuperabile in residenziale
Solaio di 85,20 mq recuperabile in residenziale
Solaio di 93,30mq recuperabile in residenziale
Giardino di 180mq
Cortile interno di 137mq
Vuoi ricevere maggiori informazioni su questo immobile?
Contattaci subito compilando il modulo sottostante!


